Di., 04.02.2020 , 16:02 Uhr

Kurznachrichten vom 04.02.2020

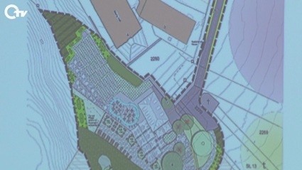
IG „Unser Berg“ übergibt UnterschriftenVerkehrsunfall mit einer verletzten Seniorin  *  Leitungswechsel bei der vhs Weiden-Neustadt  *  Galaball der Narrhalla Rot-Gelb Amberg  *  12. Oberpfälzer winterlauf Challenge  *

Alfred Brönner amberg Bürgerbegehren Bürgerentscheid Hotel Hotelanbau IG Unser Berg Interessengemeinschaft Unser Berg Mariahilfberg Oberpfalz Oberpfalz TV OTV Rathaus Stadtrat Unterschriften

Das könnte Dich auch interessieren

16.04.2025 00:32 Min Lichtinstallation am Amberger Rathaus Mit einer Lichtinstallation am Amberger Rathaus haben Aktivisten von Fridays for Future auf die Folgen der Klimakrise aufmerksam gemacht. Die Klimaschützer projezierten Bilder von Umweltkatastrophen an eine Leinwand, die an die schon heute spürbaren Auswirkungen des Klimawandels erinnern sollten. Die Amberger Gruppe von Fridays for Future beteiligte sich mit ihrer Aktion am Amberger Rathaus an 05.12.2025 00:30 Min Maximilian Kronen wird Leiter des Amts für Digitalisierung, Breitband und Vermessung Amberg Maximilian Kronen wird neuer Leiter des Amts für Digitalisierung, Breitband und Vermessung Ambergs. Am heutigen Vormittag wurde der bisherige Amtsleiter Joachim Gesierich offiziell verabschiedet und Kronen als sein Nachfolger vorgestellt. Das ADBV ist zuständig für Vermessung, Katasterführung und Geodatenbereitstellung, sowie die kommunale Beratung und Koordination beim Breitbandausbau in der Region. Insgesamt gibt es in Bayern 02.12.2025 00:33 Min Grüne stellen 32 Kandidaten für die Amberger Stadtratsliste Die grüne Stadtratsliste für die Amberger Kommunalwahl steht. Im Gasthaus Heimatgenuss im Bruckmüller hat sich der Stadtverband der Grünen getroffen und zusammen abgestimmt. Stadträtin Claudia Ried führt die Liste an, gefolgt von Piet Gürtler auf Platz 2. Bei ihren 32 Kandidaten halten die Grünen eine strenge 50/50 Frauenquote ein. Mehr Frauen in Verantwortung ist auch 19.11.2025 00:30 Min Die Liste Amberg nominiert Stadtratsliste: Prof. Martin Frey führt Liste an Die Liste Amberg hat ihre Kandidaten für die Stadtratsliste nominiert. Die Mitglieder wählten Martin Frey, der seit 2020 im Stadtrat sitzt, auf Platz 1.Insgesamt umfasst die Liste 40 Kandidaten. Die Liste Amberg will unter anderem für Klimaschutz, Stadtentwicklung sowie Chancengleichheit stehen. Bereits im Juni hatte die Liste Amberg gemeinsam mit den Grünen Hans-Jürgen Bumes als